Marra Homes - New Home Builders in Delaware

For New Home Community information click here or call
Rob Young at (302) 984-4545

Model #235
Cape with First Floor Master Bedroom
3 or 4 Bedroom, 2 1/2 or 3 Baths, 2 Car Garage, Full Basement

Bear Delaware New Homes
Elevation "A"
Bear Delaware New Homes
Elevation "B"
First floor plan 1st Floor

Master Bedroom
16'1" x 14'8"
Master Bath
6'2" x 11'0"
Living Room
13'4" x 14'0"
Dining Room
13'4" x 11'0"
Kitchen
8'6" x 16'9"
Breakfast Area
9'0" x 14'7"
2 Car Garage
19'2" x 23'0"
Foyer
7'6" x 14'0"
Additional Spaces
Powder Room
Porch
Optional Sunroom
2 Walk-In Closets
Laundry

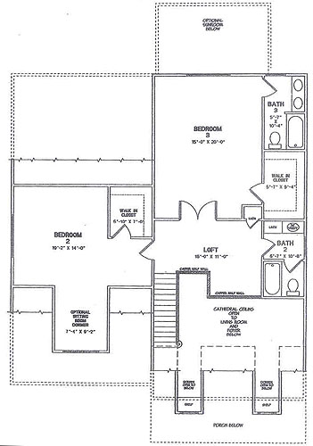
second floor plan 2nd Floor (Total of 3 Bedrooms and 2 1/2 Baths)

Bedroom #2
19'2" x 14'0"
Walk-In Closet
5'10" x 7'0"
Bathroom #2
5'7" x 10'8"
Bedroom #3
15'0" x 20'0"
Walk-In Closet
5'7" x 9'4"
Bathroom #3
5'7" x 10'4"
Loft
15'0" x 11'0"
Additional Spaces
Optional Sitting Room

second floor plan 2nd Floor (Total of 3 Bedrooms and 3 Baths)

Bedroom #2
19'2" x 14'0"
Walk-In Closet
5'10" x 7'0"
Bathroom #2
5'7" x 10'8"
Bedroom #3
12'2" x 20'0"
Sitting Area
8'8" x 12'9"
Walk-In Closet
8'4" x 7'0"
Loft
15'0" x 11'0"
Additional Spaces
Optional Sitting Room

second floor plan 2nd Floor (Total of 4 Bedrooms and 2 1/2 Baths)

Bedroom #2
13'1" x 14'0"
Walk-In Closet
5'10" x 6'0"
Bathroom #2
5'7" x 10'8"
Bedroom #3
12'2" x 20'0"
Sitting Area
8'8" x 12'9"
Walk-In Closet
8'4" x 7'0"
Bedroom #4
16'10" x 15'4"
Loft
15'0" x 11'0"
Additional Spaces
Optional Sitting Room

second floor plan 2nd Floor (Total of 3 Bedrooms and 3 1/2 Baths)
2 Master Suites

Master Suite #2
19'6" x 15'4"
Sitting Area
12'2" x 20'0"
Walk-In Closet
8'4" x 7'0"
Bathroom #3
8'4" x 12'9"
Bedroom #2
19'2" x 14'0"
Walk-In Closet
5'10" x 7'0"
Bathroom #2
5'7" x 10'8"
Loft
15'0" x 11'0"
Additional Spaces
Optional Sitting Room

If you would like more information about new home construction, please click here.

Index of Home Models


All information is deemed reliable but is not guaranteed. Properties that are shown are subject to change, prior sale or withdrawal. Neither listing brokers nor information providers shall be responsible for any typographical errors, misinformation, or misprints, and shall be held totally harmless.

Communities | Company Information | Quick Deliveries
Custom Homes | Philadelphia Region | Contact Us | Home