
| 
 4 Bedrooms, 2 1/2 Baths  | 
![]()  | 
 
 | 
Family Room 18'0" x 19'0" Dining Room 12'6" x 13'0" Living Room 12'7" x 16'6" Study 11'0" x 11'8" Country Kitchen 19'4" x 14'0" 2 Car Garage 21'10" x 20'0" Additional Spaces Powder Room  | 
 
 | 
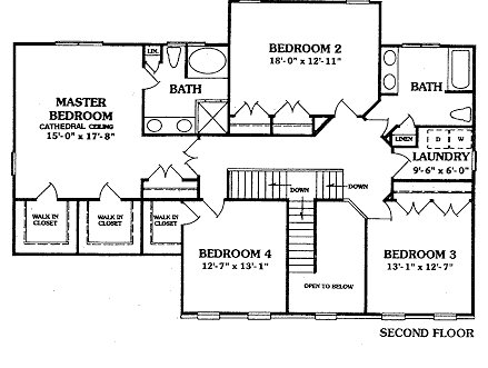
Master Bedroom 15'0" x 17'8" Bedroom #2 18'0" x 12'11" Bedroom #3 13'1" x 12'7" Bedroom #4 12'7" x 13'1" Additional Spaces Master Bath 3 Walk-In Closets Bathroom Laundry Room  | 
If you would like more information about new home construction, please click here.
Communities |
Company Information |
Quick Deliveries
Custom Homes |
Philadelphia Region |
Contact Us |
Home