Valley Farm Estates - "R" Series Floor Plans

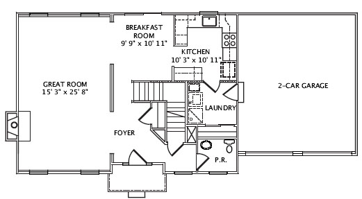
First Floor

Second Floor
Elevations ·
Options
Call  610-380-1339 or 
click here to contact us about Valley Farm Estates!
***Prices and Features are Subject to Change without Notice***
Community Homepage ·
Community Fact Sheet ·
Pricing
Standard Features ·
Community Plot Plan ·
Map and Directions