Claymont At Collegeville - "N" Series Floor Plans

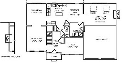
First Floor

Second Floor
"N" Series Elevations
Call 610-409-9900 or 
click here to contact us about Claymont At Collegeville!
***Prices and Features are Subject to Change without Notice***
Community Homepage ·
Community Fact Sheet ·
Pricing
 
Standard Features ·
Community Plot Plan ·
Map and Directions